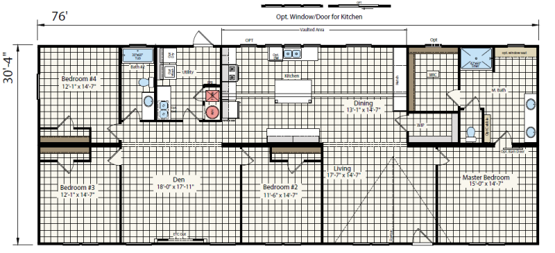
The Orleans
$45,000
Search
|
2,305 Square Feet
|
4 Bedrooms
|
2 Bathrooms
1 / 20
By providing my phone number to Jeff Sherman Tiny Homes, I agree and acknowledge that Jeff Sherman Tiny Homes may send text messages to my wireless phone number for any purpose. Message and data rates may apply.
Make an Inquiry
Have questions? We're here to help you find your perfect home.